Rénovation de l’Aile de la belle cheminée

Château de Fontainebleau

2016

La rénovation de l’aile de la belle cheminée consiste en la mise en conformité de sécurité incendie et de sûreté ainsi que le réaménagement des locaux suivants :
 Migration du PC sécurité
 Réaménagement total du restaurant salon de thé avec construction de locaux techniques et réserves en sous-sol et sanitaires publics
 Réaménagement de la salle d’exposition temporaire et de ses locaux annexes et techniques

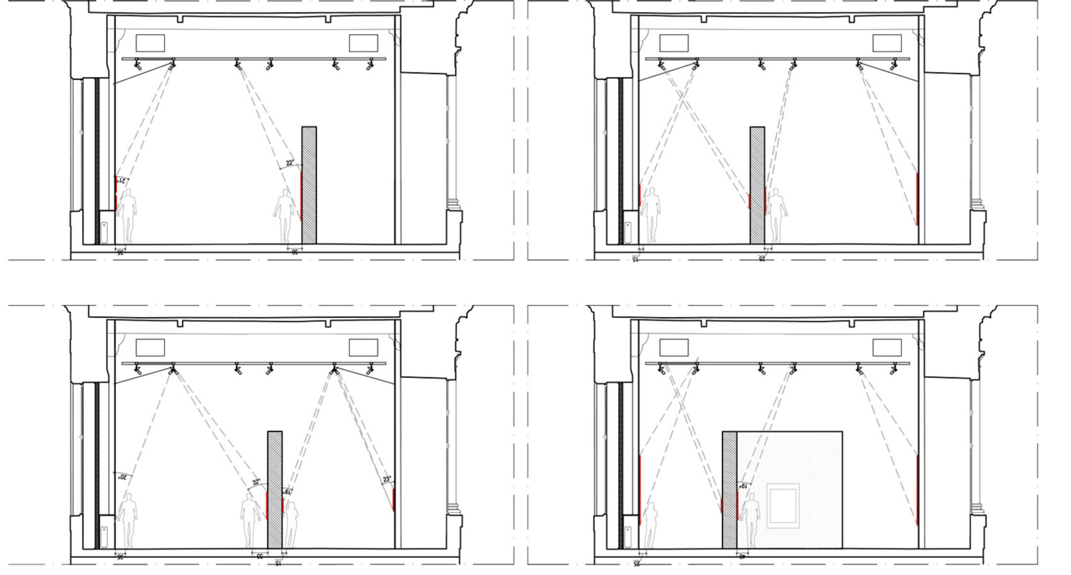
La mission de scénographie étudie des hypothèses de travail et les solutions techniques relatives à la salle d’expositions temporaires. Cette étude comprend un développement de mobiliers permanents permettant une reconfiguration rapide de la salle d’expositions temporaires et une vérification des installations techniques eu égard aux divers cloisonnements pouvant être réalisés dans la salle d’exposition.

En complément à cette mission MAW a assisté le maître de l’ouvrage dans la définition du programme de la salle d’expositions temporaires et sur les critères à mettre en place pour répondre aux critères de conservation préventive édictés pour l’accueil d’expositions internationales.

maître d’ouvrage OPPIC - château de Fontainebleau
mission scénographie, éclairage, graphisme - diagnostic
partenaires Patrick Ponsot ACMH - Alternet BET TCE - Votruba économiste
lieu Aile de la belle cheminée
date janvier 2016
budget 6 920 000 € HT
surface 550 m²